A SPANISH architect needed the patience of a saint after landing the world Building of the Year award – 16 years after his holy construction began.
Fernando Menis scooped the World Architecture Festival prize 2025 for his amazing church in the Canary Islands.
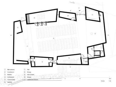
The Holy Redeemer Church and Community Centre of Las Chumberas, in La Laguna, Tenerife, is a major coup for the architect.

Acting as a focal point for urban renewal, the prize for last year’s best building was handed out at the awards ceremony in Miami.
It has been praised for its bold design and for transforming a long-neglected neighbourhood.
The innovative complex includes a church, a community centre and a public square, offering a shared space for residents.
READ MORE: Award-winning museum displaying the very best of Spanish architecture opens door for new art season

It was built largely through donations and was developed in stages over many years.
Its design was shaped by the irregular flow of funding over two decades and, as a result, the structure was constructed as four separate sections.
The first phase, which included the community facilities, was completed within two years and has been in use ever since.
The remaining sections were finished gradually, with the final elements completed 16 years later when further funding became available.

The building draws inspiration from the volcanic landscape of Tenerife. Its massive, rough concrete forms stand in contrast to the surrounding urban environment, giving it a strong and unmistakable presence.
One of its most distinctive features is the use of narrow gaps between the structures.
These are filled with sculptural metal and glass, allowing natural light to filter through in carefully controlled ways. The effect creates a calm, almost meditative atmosphere.
Click here to read more Property News from The Olive Press.




